Дома под ключ в Архангельске
Отзывы из Яндекс Карт
4.9
89 отзывов
Дополнительные услуги 88%
2 154 оценок
Комплектации 89%
1 535 оценок
Планировки 90%
2 484 оценок
Проекты 93%
2 231 оценок
С
Даня Долгов15.04.2026 г.
Фундамент заливали сами, а дом ставили они. Взяли дом 10х15 с цокольным этажом и двумя гаражами — перепутали окна на мансарде, вместо глухих поставили открывающиеся. Слава богу, не критично.
С
Лидия Миронова25.02.2026 г.
Странно, но я не нашла ни одного грубого косяка после сдачи дома 5,5х8,5 с балконом и вторым светом. Всё сделано ровно, розетки на местах, окна открываются. Единственное — в договоре забыли прописать монтаж водостоков, пришлось доплачивать отдельно, около
С
Даниил Дегтярев25.03.2025 г.
Выражаю искреннюю признательность руководству за слаженную работу всего коллектива — от менеджера, который вёл наш заказ, до строителей, которые вложили в наш дом душу; видно, что компания дорожит своей репутацией и клиентами.
Отзывы из Google Карт
4.8
54 отзывов
Дополнительные услуги 88%
2 154 оценок
Комплектации 89%
1 535 оценок
Планировки 90%
2 484 оценок
Проекты 93%
2 231 оценок
С
Юра Вишневский28.05.2025 г.
Мне как человеку дотошному важно было всё продумать до мелочей, и специалисты из Брус дома отнеслись к моим пожеланиям с максимальным вниманием, в итоге каркасный дом возведён в кратчайшие сроки и с безупречным качеством, за что огромная благодарность всей команде.
Отзывы из 2гис
4.9
42 отзывов
Дополнительные услуги 88%
2 154 оценок
Комплектации 89%
1 535 оценок
Планировки 90%
2 484 оценок
Проекты 93%
2 231 оценок
С
Эсмеральда Д.14.03.2026 г.
Только вчера подписали акт приёма бани 3х4 с печкой и маленькой террасой. Работа сделана хорошо, но пришлось дважды вызывать их, чтобы подтянули дверь в парилке — закрывалась неплотно. Сейчас всё отлично.
С
Прасковья Чернова18.01.2026 г.
Заказывала у них баню 4х6 с террасой, думала, за лето управятся, но немного затянули с доставкой бруса. Зато когда начали собирать — ребята работали чётко, без выходных, и результат очень радует, пар отличный.
С
Инга Кудряшова28.08.2025 г.
Кажется будто дом построен на совесть и простоит сто лет, настолько добротно и основательно всё сделано, начиная от мощного фундамента и заканчивая идеально подогнанными элементами кровли, и это вселяет чувство защищённости и надёжности.


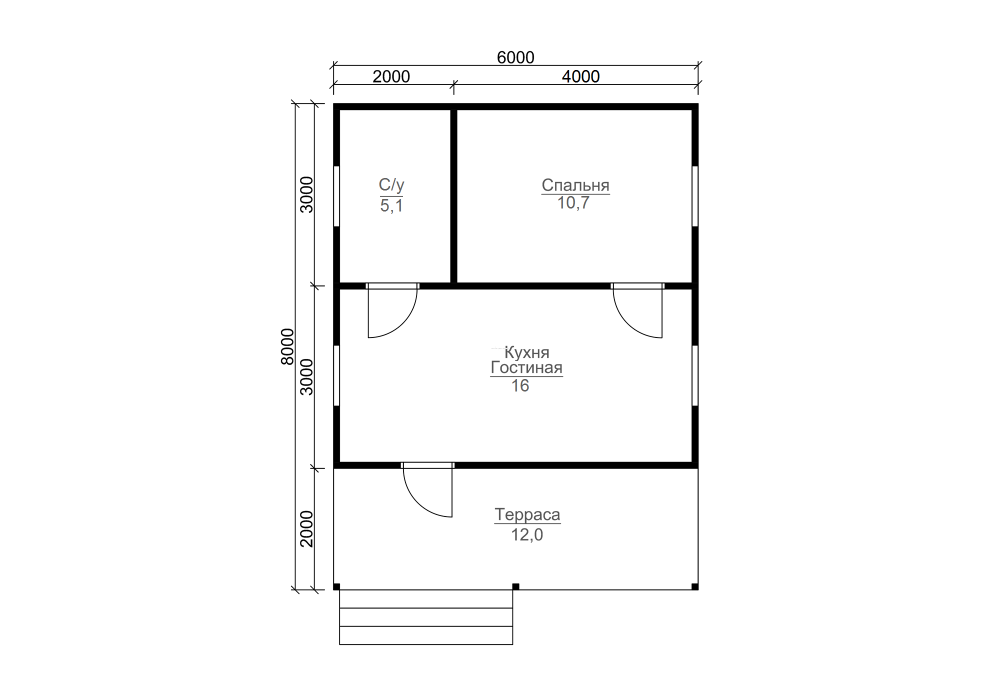
Проект №84 Каркасный дом 6х8

каркас из строганой доски
Каркасный дом (150 мм) 6х8 Толщина утепления 150 мм 1330500 Заказать
Каркасный дом (200 мм) 6х8 Толщина утепления 200 мм 1450500 Заказать

Пользуйтесь нашим планировщиком для того, чтобы получить свою индивидуальную планировку.

При помощи планировщика вы можете сделать схемы, планы, эскизы, чертежи дома с мансардой, эркером, с необходимым количеством комнат. Вы сможете получить свой проект с планировкой, который отвечает вашим требованиям.

При заказе строительства дома можно выбрать вид кровли. Вашу крышу можно сделать двускатной, четырехскатной и вальмовой. Двухскатная считается самой востребованной в малометражных постройках.

Самые популярные размеры домов и коттеджей на текущий момент: мини - до 50 м2 (в основном, одноэтажные); компактные - от 70м2 до 100 квадратов (обычно двухэтажные); большие дома - от 150м2 и свыше.

Готовы предложить дуплексы - большие каркасные дома с двумя входами на несколько семей. Дома строятся сразу для нескольких хозяев, они разделены на две части, каждая половина с отдельным входом.


Наши работы

Перейти в галерею


Комплектация

Площадь застройки: 48 м2
Длина: 8 м
Ширина: 6 м
Общая площадь: 32.8 м2
Исполнение Под ключ (с отделкой)
Фундамент Свайно-винтовой или ж/б сваи (рассчитываются отдельно).
Гидроизоляция фундамента Рубероид в два слоя.
Основание (обвязка) Из обрезного бруса 150х150 мм. 150х200 мм. согласно выбранной толщине утепления. Торцевая доска строганая 45х145/45х195+/-5 мм. согласно выбранной толщине утепления. Обработка антисептиком.
Цокольное перекрытие Строганая доска камерной сушки 45х145/45х195+/-5 мм. с шагом 590 мм. Обработка антисептиком.
Пол черновой Обрезная доска камерной сушки 20х100 мм.
Влаго-ветрозащита чернового пола Мембрана Ондутис А100.
Внешние стены Стойки каркаса из строганой доски камерной сушки 45х145/45х195+/-5 мм. с шагом 590 мм. Верхняя двойная и нижняя обвязки из строганой доски камерной сушки 45х145/45х195+/-5 мм. Разгрузочный ригель из строганой доски 45х145+/-5 мм. Укосины из строганой доски 20х95 мм.
Перегородки Стойки каркаса из строганой доски камерной сушки 45х95+/-5 мм. с шагом 590 мм. Верхняя двойная и нижняя обвязки из строганой доски 45х95+/-5 мм. Разгрузочный ригель из строганой доски камерной сушки 45х145+/-5 мм. Укосины из строганой доски камерной сушки 20х95 мм.
Сборка каркаса На гвозди.
Высота от пола до потолка Дом одноэтажный: 2,5 м. Дом с мансардой: 1-ый этаж- 2,5 м.
2-ой этаж (мансарда)- 2,3 м.
Дом в полтора и два этажа:
1-ый этаж 2,5 м.
2-ой этаж 2,4 м. в полутораэтажном доме
2,5 м. в двухэтажном доме.
Внешняя отделка стен Имитация бруса камерной сушки, сорт АВ, толщиной 17 мм. Монтаж через строганый брусок камерной сушки 45х45+/-5 мм. (вентилируемый фасад). Влаго-ветрозащитная мембрана- Ондутис А100.
Внутренняя отделка стен, перегородок Евровагонка камерной сушки, сорт АВ, толщиной 12,5 мм. по строганой рейке 20х40+/-5 мм. либо ГКЛ 12,5 мм.
Отделка потолка Евровагонка камерной сушки, сорт АВ толщиной, 12,5 мм. по строганой рейке 20х40+/-5 мм. либо ГКЛ 12,5 мм.
Пол чистовой Шпунтованная доска камерной сушки толщиной 35-36 мм. сорт АВ. по строганой рейке 20х40+/-5 мм. либо шпунтованная ДСП 16 мм. по разряженной обрешётке из строганой доски камерной сушки 20х95+/-5 мм.
Утепление (пол, потолок) Минеральная вата Knauf 150/200 мм. согласно выбранной толщине утепления.
Утепление стен Плитный утеплитель Rockwool, толщиной 150/200 мм. согласно выбранной толщине утепления.
Звукоизоляция перегородок Плитный утеплитель Rockwool, толщиной 100 мм.
Пароизоляция (стены, перегородки, пол, потолок) Плёнка Ондутис R70. Дополнительная герметизация нахлёстов/примыканий пароизоляционной плёнки клейкой лентой Delta.
Окна Двухкамерные стеклопакеты ПВХ белого цвета, профиль 60 мм. В комплекте: отливы, подоконники, москитные сетки.
Двери Входная- металлическая, утеплённая (Россия). Межкомнатные- филёнчатые.
Наличники на окна и двери Наличник деревянный, строганый, камерной сушки 70-90 мм. с двух сторон.
Лестница (при наличии второго этажа) Деревянная, одно или двухмаршевая. Перила- заводские резные, балясины- заводские точеные, устанавливаются стартовые точёные столбы. Ступени 40х200 мм. Тетива лестницы- 90х140 мм.
Крыша Двускатная, ломаная или вальмовая в соответствии с проектом.
Стропильная система Выполнена из строганой доски камерной сушки 45х145/45х195+/-5 мм. Шаг установки стропил 590 мм.
Обрешётка Выполняется из строганой доски камерной сушки толщиной 20х95+/-5 мм. Шаг крепления обрешетки 350 мм. Контробрешётка выполняется из строганого бруска камерной сушки 45х45+/-5 мм. Крепится по стропилам (вентиляционный зазор).
Подкровельная мембрана Ондутис А100
Кровельное покрытие (на выбор) Металлочерепица 0,45 мм. Цвет на выбор.
Фронтоны (при наличии) Каркас из строганой доски камерной сушки 45х145/45х195+/-5 мм. Обшиваются имитацией бруса камерной сушки, сорт АВ, толщиной 17 мм. Монтаж через строганый брусок камерной сушки 45х45+/-5 мм. (вентилируемый фасад). Влаго-ветрозащитная мембрана- Ондутис А100. Монтаж вентиляционных решёток.
Свесы крыши Ширина 400 мм. Подшиваются вагонкой камерной сушки, сорт АВ.
Терраса/балкон (при наличии) Устанавливаются опорные столбы из строганного бруса камерной сушки 140х140 мм.
Отделка потолка террасы/балкона Евровагонка камерной сушки толщиной 12,5 мм. сорт АВ.
Пол террасы/балкона Шпунтованная доска камерной сушки толщиной 35-36 мм. сорт АВ.
Ограждение террасы/балкона Перила- строганая доска. Балясины- точеные, фигурные. Либо ограждение в скандинавском стиле. Устанавливаются ступени у входа.
Допуск на геометрические параметры Составляет +/- 50 мм по длине с каждой стороны.
Допускается стыковка имитации бруса, вагонки и половой доски По всему периметру стен дома (если ширина и длина дома более 6,0 метров). Вагонки и доски пола в каждой отдельной комнате.
Допуски по имитации бруса, вагонке, доске +/- 5 мм.
В стоимость включена Доставка комплекта материала в радиусе 500 км. от г. Пестова Новгородской области и сборка дома на вашем участке.
Гарантия 5 лет.
Бытовка строительная 2,0х3,0 м. каркасно-щитовая. Стоимость 23000 руб. Остаётся на участке Заказчика.
Туалет 1,0х1,0 м. каркасно-щитовой. Стоимость 12000 руб. Остаётся на участке Заказчика.
Генератор Стоимость аренды на весь срок строительства 15000 руб. ГСМ за счёт Заказчика.

Постройка каркасного дома выполняется в двух вариантах: под усадку, когда сруб будет отстаиваться некоторое время и сразу под ключ.

В зимнее время надежнее строить в холодную погоду, чтобы каркас не промок, в летнее время - не под дождем.

Оптимальными для дачи или сада стали дома на винтовых сваях, в нашем онлайн-каталоге имеются одноэтажные и полуторатажные дома.

Для постоянного проживания, предлагаем теплые дома на плитном и ленточном фундаменте.

Имеется 2 вида утепления: 200 мм и 150 мм. Каркасные дома с утеплителем двести миллиметров получаются теплее, но несколько дороже.

Дополнительные услуги


Этот красивый, удобный и просторный одноэтажный каркасный дом с большой террасой может использоваться не только в качестве дачи, но и для постоянного проживания. 

Планировка

Проект 84 отличается продуманной планировкой. В доме есть абсолютно все, что нужно для жизни. Зонирование помещений позволяет максимально задействовать пространство и делает проживание комфортным.

Характеристики

Общая площадь застройки составляет 32.8 кв.м., размер дома – 6х8 м..

Благодаря двойным зимним окнам (1x1,2 метра) дом будет иметь хорошую освещенность.  Высота потолков составляет 2,45 метров. Здание имеет двускатную крышу.

Если вам понравился этот проект, но вы хотите внести в него изменения – нет проблем. Специалисты нашей компании могут разработать индивидуальный проект, с учетом всех пожеланий заказчика.

Наша компания не первый год успешно работает на строительном рынке и имеет за плечами большое количество реализованных проектов в Архангельске. Мы работаем только по официальному договору. Полная оплата услуг производится только после окончательного выполнения работы.


Популярные проекты


Дома из бруса 7х9 Бани из бруса с балконом Бани из бруса с верандой
хит продаж
Тип:
Общая площадь: 2
1628000
от 1550500
хит продаж
Тип: с балконом, с маленькой террасой
Общая площадь: 2
1638500
от 1560500
хит продаж
Тип:
Общая площадь: 2
2594000
от 2470500
Дома из бруса

Заказать или задать вопрос



Заказать или задать вопрос

Заказать звонок