Дома под ключ в Архангельске
Отзывы из Яндекс Карт
4.9
120 отзывов
Дополнительные услуги 88%
2 154 оценок
Комплектации 89%
1 535 оценок
Планировки 90%
2 484 оценок
Проекты 93%
2 231 оценок
С
Эрика Тимофеева09.02.2026 г.
Контролировала сама каждый этап, потому что муж в командировках. Сказать, что устала — ничего не сказать. Но бригада не халтурила, всё делали по технологии. Дом 6х10, с гаражом и навесом для дров.
С
Анатолий Архипов19.08.2025 г.
По настоящему творческий подход к работе — мне предложили несколько интересных планировочных решений для моего каркасного дома, о которых я сам никогда бы не подумал. В итоге дом получился не только тёплым и надежным, но и очень удобным для жизни.
Отзывы из Google Карт
4.8
72 отзывов
Дополнительные услуги 88%
2 154 оценок
Комплектации 89%
1 535 оценок
Планировки 90%
2 484 оценок
Проекты 93%
2 231 оценок
С
Захар Князев11.05.2026 г.
Прораб у них — дядька опытный, всё по уму сделал. Дом 6,5х6,5 с мансардой получился тёплым. Только окна пластиковые я бы попросил получше поставить, но это уже моя прихоть.
С
Витя Щ.05.03.2026 г.
Построили двухэтажный дом 11х11 с мансардой, внутри санузел и котельная на каждом этаже. Бригада работала без выходных, закончили за два с половиной месяца. Единственное — лестницу сделали крутоватой, пришлось переделывать за свой счет.
С
Федор Т.07.03.2025 г.
Я доволен каждым аспектом сотрудничества, начиная от первого звонка и заканчивая гарантийным обслуживанием, так как ни разу не столкнулся с халтурой или необязательностью.
Отзывы из 2гис
4.9
42 отзывов
Дополнительные услуги 88%
2 154 оценок
Комплектации 89%
1 535 оценок
Планировки 90%
2 484 оценок
Проекты 93%
2 231 оценок
С
Эльза13.04.2026 г.
Через полгода после стройки баня 4х6 с беседкой дала небольшую усадку, крыша чуть перекосилась. Приехали ребята, подтянули затяжки, всё выровняли. Вежливые, даже чаю попросили. Теперь всё идеально.
С
Алла Колесова17.01.2026 г.
Решили строить баню 6х8,5 с двумя комнатами и беседкой. В «БрусДома» быстро составили договор, привезли лес. В процессе заметила, что стены местами мокрые — оказалось, неправильно закрыли плёнкой от дождя. Просушили, всё ок, но переживала.
С
Эмма Моргунова30.04.2025 г.
Мечтала о собственной бане с детства, и вот наконец свершилось. Обратилась в эту компанию и ни разу не пожалела. Сруб сделали из сухого бруса, поэтому усадка минимальная, сразу можно начинать отделку. Пахнет внутри просто волшебно, древесиной и свежестью. Работники оставили после себя идеальную чистоту.


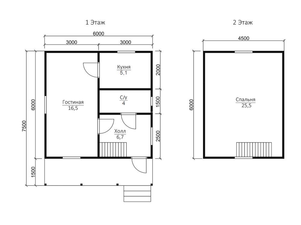
Проект №18 Дом с террасой 7,5х6

брус камерной сушки
Создайте свой план для этого проекта
и отправьте его нам на расчет в один клик.
Под ключ (с отделкой) 6х7,5 Профилированный 140х140 мм 1590500 Заказать
Под ключ (с отделкой) 6х7,5 Профилированный 190х140 мм 1740500 Заказать
Под усадку (без отделки) 6х7,5 Cруб дома 140х140 мм 1070500 Заказать
Под усадку (без отделки) 6х7,5 Cруб дома 190х140 мм 1200500 Заказать


Комплектация

Площадь застройки: 45 м2
Длина: 7.5 м
Ширина: 6 м
Общая площадь: 58.82 м2
Под ключ (с отделкой) Под усадку (без отделки)
Фундамент Свайно-винтовой или ж/б сваи (рассчитываются отдельно).
Гидроизоляция фундамента Рубероид в два слоя.
Основание (обвязка) Из обрезного бруса (100х150 мм. 150х150 мм. 150х200 мм. согласно выбранному сечению бруса). Обработка антисептиком.
Количество рядов основания 2 2
Цокольное перекрытие Обрезной брус камерной сушки 100х150/50х200 мм. с шагом 600 мм. Обработка антисептиком. Обрезной брус естественной влажности 100х150/50х200 мм. с шагом 600 мм. Обработка антисептиком.
Пол черновой Обрезная доска камерной сушки 20х100 мм. Обрезная доска естественной влажности 20х100 мм.
Внешние стены Профилированный брус камерной сушки, сечением 90х140/140х140/190х140 мм. по выбранной комплектации. Два вида профиля: 
1. С двух сторон, прямой со снятой фаской. 2. Снаружи под «блок- хаус», внутри прямой.
Высота сруба: Сруб одноэтажный- 18 венцов
Сруб с мансардой- 18 венцов
Сруб в 1,5 этажа- 18 венцов, далее каркас с внешней отделкой имитацией бруса.
Сруб в 2 этажа- 37 венцов
Профилированный брус естественной влажности, сечением 90х140/140х140/190х140 мм. по выбранной комплектации. Два вида профиля: 
1. С двух сторон, прямой со снятой фаской. 2. Снаружи под «блок- хаус», внутри прямой.
Высота сруба: Сруб одноэтажный- 18 венцов
Сруб с мансардой- 18 венцов
Сруб в 1,5 этажа- 18 венцов, далее каркас с внешней отделкой имитацией бруса.
Сруб в 2 этажа- 37 венцов
Межвенцовый утеплитель Джут (льноджутовое полотно). Джут (льноджутовое полотно).
Перегородки 1-го этажа Профилированный брус камерной сушки, сечением 90х140 мм. Профилированный брус естественной влажности, сечением 90х140 мм.
Перегородки 2-го этажа Каркасные: доска камерной сушки 40х100 мм, обшитые евровагонкой хвойных пород, камерной сушки, толщиной 12,5 мм. сорт «АВ» (дома с мансардой и в 1,5 этажа). Брусовые: профилированный брус камерной сушки, сечением 90х140 мм. (дома двухэтажные). Каркасные: доска естественной влажности 40х100 мм. (дома с мансардой и в 1,5 этажа). Брусовые: профилированный брус естественной влажности, сечением 90х140 мм. (дома двухэтажные).
Сборка сруба Берёзовый нагель. Берёзовый нагель.
Соединение углов сруба «Тёплый угол» (коренной шип). «Тёплый угол» (коренной шип).
Высота от пола до потолка Сруб одноэтажный: 2,4 м. (18 венцов) Сруб с мансардой: 1-ый этаж- 2,4 м. (18 венцов)
2-ой этаж (мансарда)- 2,3 м.
Сруб в полтора и два этажа:
1-ый этаж 2,4 м ±4 см. (18 венцов)
2-ой этаж 2,4 м ±4 см. каркасные аттиковые стены (боковые) высотой 1,5 м. в полутораэтажном доме
2,4 м ±4 см (поднят брусом на 18 венцов) в двухэтажном доме.
Сруб одноэтажный: 2,5 м. (18 венцов) Сруб с мансардой: 1-ый этаж- 2,5 м. (18 венцов)
2-ой этаж (мансарда)- 2,4 м.
Сруб в полтора и два этажа:
1-ый этаж 2,5 м ±4 см. (18 венцов)
2-ой этаж 2,5 м ±4 см. каркасные аттиковые стены (боковые) высотой 1,5 м. в полутораэтажном доме
2,5 м ±4 см (поднят брусом на 18 венцов) в двухэтажном доме.
Утепление (пол, потолок, мансарда) Минеральная вата Knauf 150 мм. Отсутствует.
Пароизоляция (пол, потолок, мансарда) Ондутис R70. Отсутствует.
Пол чистовой Шпунтованная доска камерной сушки толщиной 36 мм. сорт АВ. по рейке 20х40 мм. либо шпунтованная ДСП 16 мм. по разряженной обрешётке из обрезной доски камерной сушки 20х100 мм. Отсутствует.
Потолки Евровагонка камерной сушки толщиной 12,5 мм. сорт АВ. Отсутствует.
Окна Деревянные, двойного остекления. Отсутствуют.
Двери Входная- металлическая, утеплённая (Россия). Межкомнатные- филёнчатые. Отсутствуют.
Наличники на окна и двери Наличник деревянный, строганый, камерной сушки 70-90 мм. Отсутствует.
Шиповка оконных и дверных проёмов (ройки) Да. Отсутствует.
Лестница (при наличии второго этажа) Деревянная, одно или двухмаршевая. Перила- заводские резные, балясины- заводские точеные, устанавливаются стартовые точёные столбы. Ступени 40х200 мм. Тетива лестницы- 90х140 мм. Отсутствует.
Крыша Двускатная, ломаная или вальмовая в соответствии с проектом. Двускатная, ломаная или вальмовая в соответствии с проектом.
Стропильная система Выполнена из обрезной доски камерной сушки 40х150 мм. Шаг установки стропильных ног 600 мм. Выполнена из обрезной доски естественной влажности 40х150 мм. Шаг установки стропильных ног 600 мм.
Обрешётка Выполняется из обрезной доски камерной сушки толщиной 20-22 мм. Шаг крепления обрешетки 300 мм. Контробрешётка выполняется из бруска камерной сушки 40х50 мм. Крепится по стропильным ногам (вентиляционный зазор). Выполняется из обрезной доски естественной влажности толщиной 20-22 мм. Шаг крепления обрешетки 300 мм. Контробрешётка выполняется из бруска естественной влажности 40х50 мм. Крепится по стропильным ногам (вентиляционный зазор).
Подкровельная мембрана Ондутис А100 Ондутис А100
Кровельное покрытие (на выбор) Ондулин, Черепица Ондулин. Ондулин, Черепица Ондулин.
Фронтоны (при наличии) Каркас из обрезной доски камерной сушки 40х150 мм. Обшиваются вагонкой камерной сушки толщиной 16 мм. сорт АВ по контррейке 20х40 мм. (вентиляционный зазор). Влаго-ветрозащита Ондутис А100. Монтаж вентиляционных решёток. Каркас из обрезной доски естественной влажности 40х150 мм. Обшиваются вагонкой камерной сушки толщиной 16 мм. сорт АВ по контррейке 20х40 мм. (вентиляционный зазор). Влаго-ветрозащита Ондутис А100. Монтаж вентиляционных решёток.
Свесы крыши Ширина 400 мм. Подшиваются вагонкой камерной сушки, сорт АВ. Ширина 400 мм. Подшиваются вагонкой камерной сушки, сорт АВ.
Терраса/балкон (при наличии) Устанавливаются опорные столбы из строганного бруса камерной сушки 140х140 мм. с компенсационными болтами под усадку. Устанавливаются опорные столбы из строганного бруса естественной влажности 140х140 мм. с компенсационными болтами под усадку.
Отделка потолка террасы/балкона Евровагонка камерной сушки толщиной 12,5 мм. сорт АВ. Отсутствует.
Пол террасы/балкона Шпунтованная доска камерной сушки толщиной 36 мм. сорт АВ. Отсутствует.
Ограждение террасы/балкона Перила- строганая доска. Балясины- точеные, фигурные. Либо ограждение в скандинавском стиле. Устанавливаются ступени у входа. Отсутствует.
Допуск на геометрические параметры сруба Составляет +/- 50 мм по длине с каждой стороны. Составляет +/- 50 мм по длине с каждой стороны.
Допускается стыковка бруса, вагонки и половой доски По всему периметру стен дома (если ширина и длина дома более 6,0 метров). Вагонки и доски пола в каждой отдельной комнате. По всему периметру стен дома (если ширина и длина дома более 6,0 метров).
Допуски по брусу, доске +/- 5 мм. +/- 5 мм.
В стоимость включена Доставка комплекта материала в радиусе 500 км. от г. Пестова Новгородской области и сборка дома на вашем участке. Доставка комплекта материала в радиусе 500 км. от г. Пестова Новгородской области и сборка дома на вашем участке.
Гарантия 5 лет. 2 года.
Бытовка строительная 2,0х3,0 м. каркасно-щитовая. Стоимость 23000 руб. Остаётся на участке Заказчика. Стоимость 23000 руб. Остаётся на участке Заказчика.
Туалет 1,0х1,0 м. каркасно-щитовой. Стоимость 12000 руб. Остаётся на участке Заказчика. Стоимость 12000 руб. Остаётся на участке Заказчика.
Генератор Стоимость аренды на весь срок строительства 10000 руб. ГСМ за счёт Заказчика. Стоимость аренды на весь срок строительства 10000 руб. ГСМ за счёт Заказчика.

Постройка деревянных домов выполняется в нескольких вариантах: под усадку, когда дом отстаивается некоторое время и под ключ.

Зимой специалисты советуют строить дом из зимнего леса, летом - из дерева камерной сушки.

Наиболее подходящими для дачи или сада считаются домики на винтовых сваях, на нашем сайте вы увидите одноэтажные и полуторатажные варианты.

Для ПМЖ (постоянного проживания), можем предложить надежные и теплые дома на плитных и ленточных фундаментах.

Существует несколько вариантов размеров профбруса: 190х140 мм и 140х140 мм. Постройки из вертикального бруса строятся с использованием бруса 140х190 мм.

Дополнительные услуги


Проект полутораэтажного дома из бруса с маленькой террасой – востребованный вариант коттеджа для загородного проживания.

Проекты компании «Дача из бруса» отличаются строгими архитектурными линиями и лаконичным дизайном, что придает строениям респектабельность.

Деревянный дом общей площадью 58.82 кв.м. и размером 6х7,5 м. обеспечит потребности семьи из нескольких человек.

Расположение комнат традиционное и делает проживание в доме комфортным и приятным. Здесь есть все для полноценного проживания в любой сезон: комнаты сна и отдыха, кухонная зона, помещения общего пользования. Во всех жилых помещениях предусмотрена установка зимних двойных окон и филенчатых дверей. Оптимальное расположение окон обеспечивает естественное освещение комнат в дневное время и необходимый воздухообмен, формируют здоровый микроклимат в доме.

Крыша дома двускатная, выполнена из ондулина любой имеющейся расцветки.

Закажите строительство дома по нашему проекту в Архангельске, позвонив нам или оставив заявку на сайте.


Заказать или задать вопрос



Заказать или задать вопрос

Заказать звонок